Beratung, Entwurf, Planung und Bau
Mehrgenerationenhaus i. Massivholzbauweise
Neubau EFH m. Wärmepumpenanlage + Teil-Sanierung Albau 50er J.
Planungsgemeinschaft m. venus - architekt / EFH bei München - 2006/07
Komplette Planung u. Baudurchführung f. priv. Bauherren
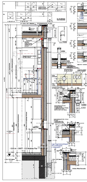
DETAILS
Bestand / Altbau + Gartengrundstück
Ansichten Alt- u. Neubau
Statik + Entwurf Isometrie
Ansichten n. Fertigstellung
Werkplanung
Ansichten Entwurf
1. Modellstudie
Schnitt - Mehrgenerationenhaus Entwurfsstudie
Entwurf Bäder OG