Beratung, Entwurf, Planung und Bau
Mehrgenerationenhaus i. Massivholzbauweise
Neubau EFH m. Wärmepumpenanlage + Teil-Sanierung Albau 50er J.
Planungsgemeinschaft m. venus - architekt / EFH bei München - 2006/07
Komplette Planung u. Baudurchführung f. priv. Bauherren
Baustelle / Details / Haustechnik
Brunnenbohrung Speicher und Wärmepumpenanlage
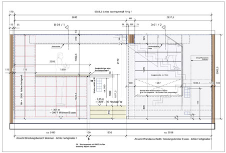
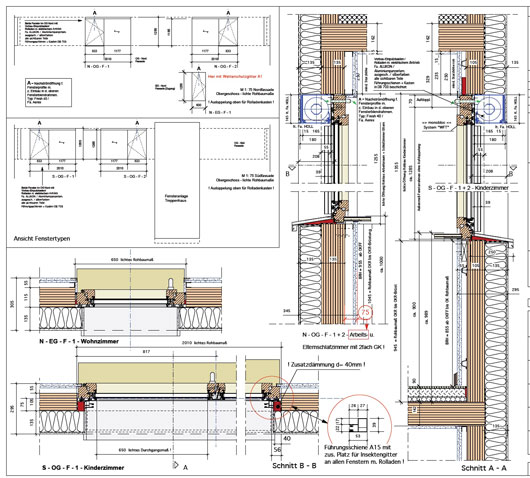
Fassaden- / Fensterbau
Trocken- / Innenausbau