|
Detail- u. Werkplanung Wohnhaus München - 2004
|
||||||||
|
f. J. Bauer Architekten - München
|
||||||||
![]() |
![]() |
|||||||
|
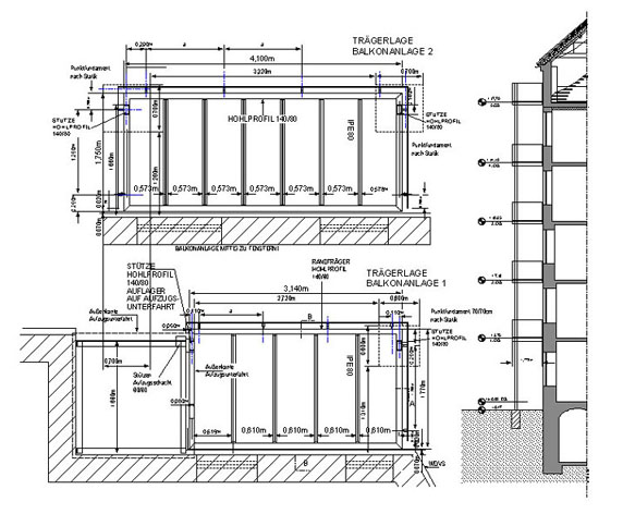
Balkonanlage - Grundriss u. ges. Schnitt
|
||||||||
![]() |
||||||||
|
Stahlwendeltreppe
|
||||||||
![]() |
||||||||
|
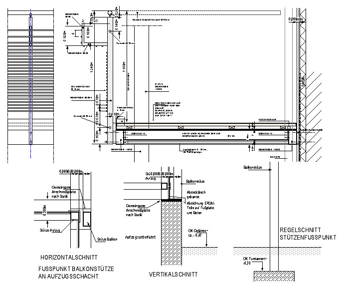
Balkonanlage - Geländer
|
Balkonanlage - Details
|
|||||||