|
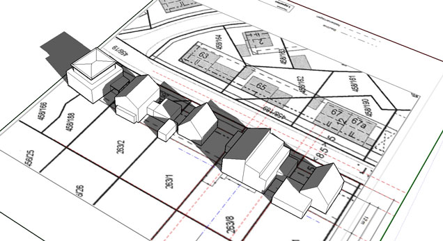
Beratung u. Grundlagenermittlung Doppelhaus
|
|||||||
|
f. private Bauherren - München / 2011
|
|||||||
![]() |
|||||||
|
Vorprüfung: Verschattung / Abstandsflächen
|
|||||||
![]() |
|||||||
|
Modellstudie
|
|||||||
|
Grundrißstudie
|
|||||||
![]() |
|||||||