Entwurfsplanung + Bauantrag
Ladenbau
f. Grüntuch + Ernst Architekten / Berlin - 1997
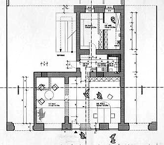
Grundrisse Neuplanung + Bestand
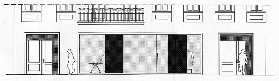
Ansichten Neuplanung + Bestand
Schnitte m. Abbruch + Neubauteilen