Beratung, Entwurf, Planung und Durchführung
Möbel- u. Innenausbau
Eigentumswohnung - 2007 / 08 - MFH Bj. 1981
f. private Bauherrin - München
Balkonsanierung >
Wohnbereich
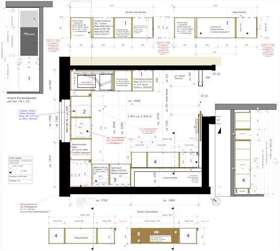
Grundriss / Planung
Innenausbau Schlafzimmer-, Ankleide- u. Badbereich
Schlafzimmer m. Zugang Ankleide / Bad
Badbereich / begehbare Dusche
Planung + Innenausbau Flurbereich / Gäste-WC
Entwurf / Küchenplanung