Sanierung und Umbau Denkmal
Detail- u. Werkplanung, Ausschreibung, Projekt- u. Bauleitung
f. J. Bauer Architekten / München Viktualienmarkt 2004 - 05
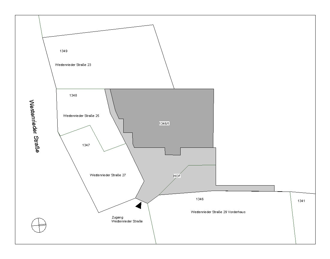
Lageplan
Ansichten - Planung
Dachgeschossausbau nach Fertigstellung
Neue Dachschiebefenster
Bestandsfotos
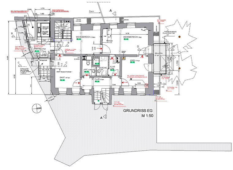
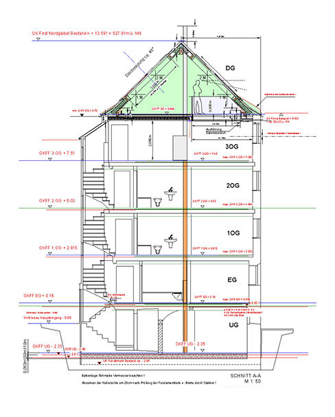
Schnitte / Ansicht Giebel m. Balkonanlage / Grundriß EG
Alte Holzlade - Anbau
Baustellenfotos
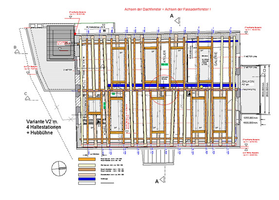
Dachstuhl / Ansicht Süd / Grundrisse 2. und 3. OG