LPH 5-7
Umbau, Sanierung und Erweiterung / Aufstockung
Holzmassivbau - 2019
MFH - Bj. 1886 - 50er J. (Wiederaufbau) - Köln
Ansichten - 3D - Modell
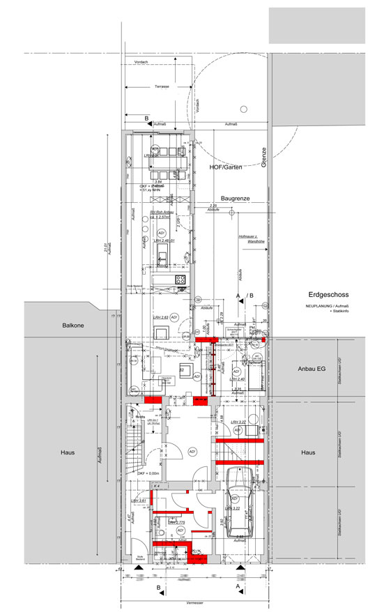
EG
1. OG
Umbau- u. Statikvorplanung
Schnitte
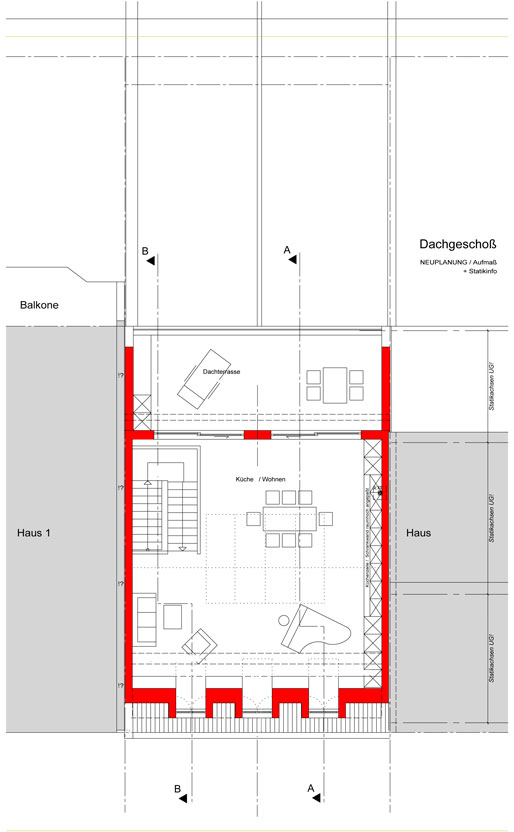
Bereich Aufstockung
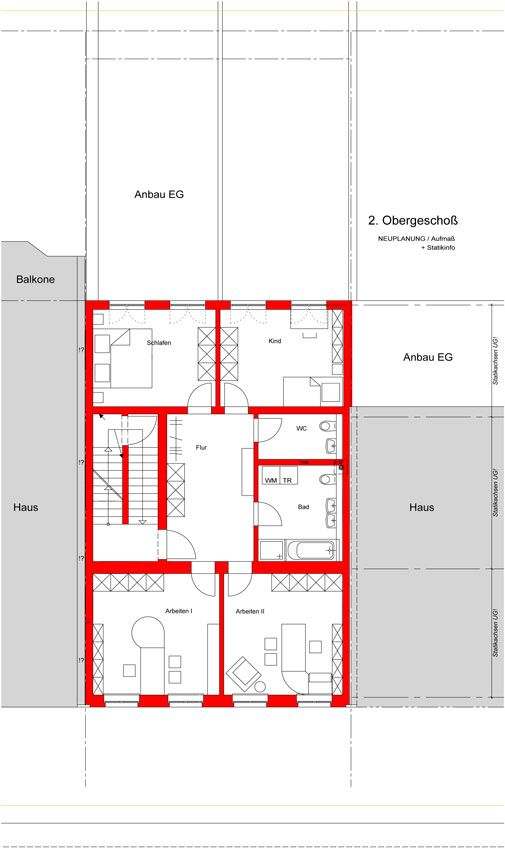
2. OG
DG
Bestandsaufnahme / Aufmaße / Materialprüfung