Sanierung m. Neubauteil u. Dacherneuerung / -ausbau
MFH Dessau 1999 - 2000
m. A9 + Dr. Metzner / Schild f. Immobilien GmbH
Ansichten n. Fertigstellung / Lage
Bestand / Fotos vor Baubeginn
Ansichten - Neu- u. Altbau / Planung
Dachaufsicht - Alt- und Neubau
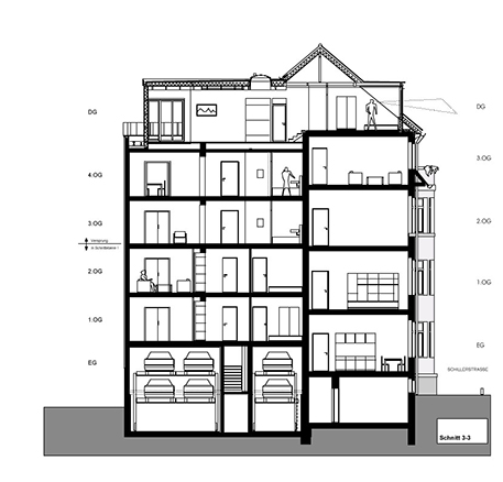
Schnitt Neu- u. Altbau
Hofaufsicht
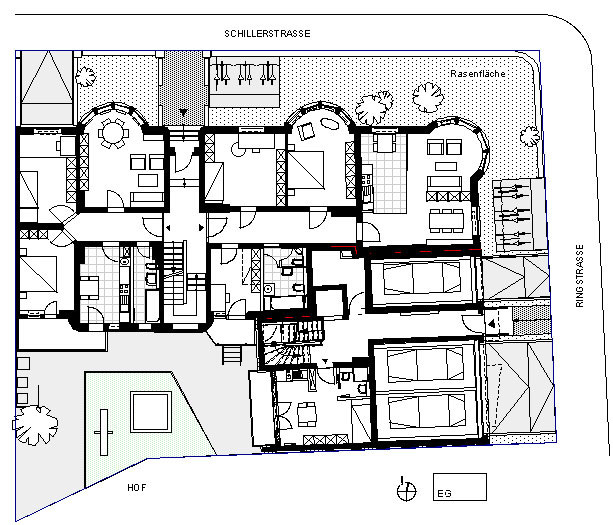
Grundriß EG - Alt- und Neubau
Ansicht Hoffassaden
Bauphasen
Bestand