Entwurfs- u. Werkplan. / Ausschreibung / Bauleitung
Kernsanierung / TRH-Aufstockung / Dacherneuerung und -ausbau
gr. MFH Dessau 2000 - 01
m. A9 + Dr. Metzner / Schild f. Immobilien GmbH - Berlin
Eckansicht Strasse u. Luftbild n. Fertigstellung / Lage
Planung -> Erneuerung Dachgeschoßebenen u. Aufstockung TRH
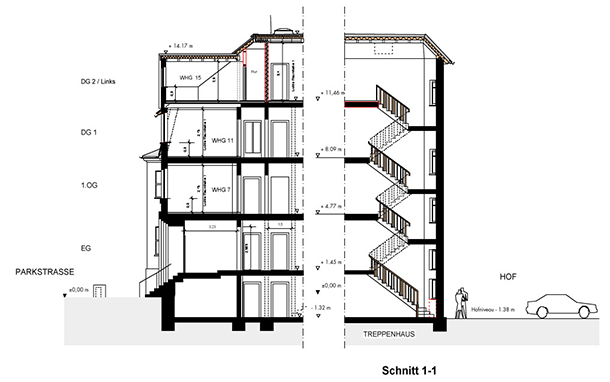
Ansicht Strasse u. Schnitte
Eckansicht n. Fertigstellung
Lageplan Hof / UG
Bestand / Fotos vor Baubeginn
Planung -> sämtliche Wohnungen m. Balkon oder Dachterrasse
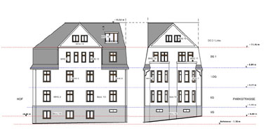
Giebelansichten
Hofansicht
Dachaufsicht
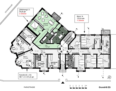
Grundriss EG
Grundriß 1. DG
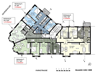
Grundriss 1. OG