Bestandsaufnahme - Planung - Energieberatung
Durchführung Dachbodendämmumg
gr. MFH / 60er Jahre
f. WEG - Dachau / 2012 - 14
Luftbild + Ansichten Bestand
Gestaltungsentwurf für Instandhaltung
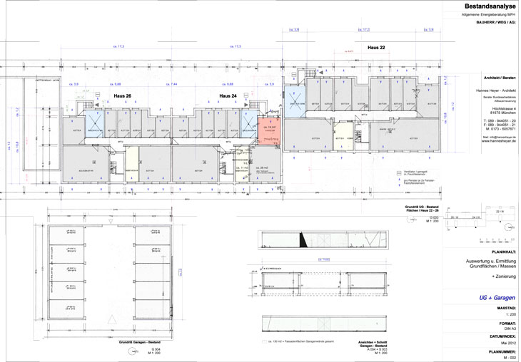
Bestandsaufnahme Massen und Haustechnik
Vorplanung / Ausschreibung -> Einbau Dachbodendämmung 2012/13
Bestandsanalyse / Instandhaltungsmaßnahmen