Beratung, Planung und Durchführung
Tiefgaragensanierung MFH Bj. 1982 - 2009/10
f. WEG / Hausverwaltung - München
Dachsanierung >>>>>
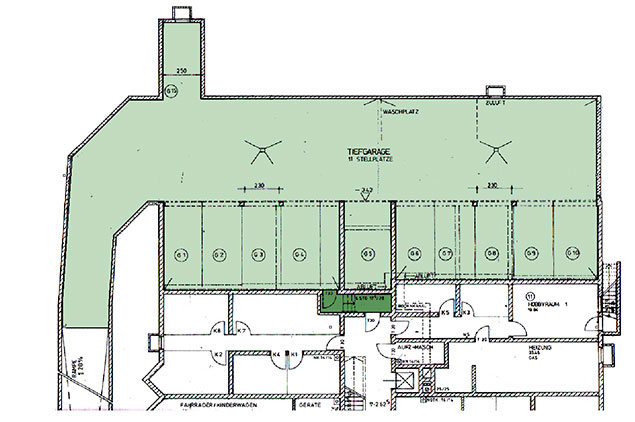
Grundriß Tiefgarage
m. 11 Stellplätzen
Sanierungsbereich Zufahrt - vorher und nachher
Sanierungsphasen Stellplatz - Sockelzone + Endanstrich mit Markierungen
Sanierung Deckel Pumpensumpf u. Bodenabläufe - vorher und nachher
Sanierung Sockel- u. Teilbereich Wand - vorher / nachher
Betonsanierung Stürtzenfuß - vorher und nachher