Bestandsaufnahme - Beratung + Planung
Umbau, Erweiterung und energetische Sanierung - EFH / Bj. 1951
f. privaten Bauherren / Bad Homburg - 2000
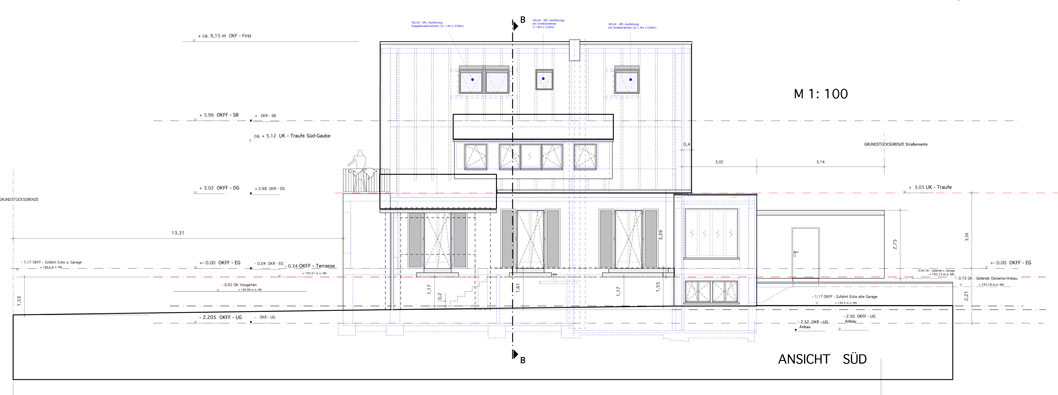
Ansicht Bestand + Neuplanung Strassenfassade, Anbau u. Garage
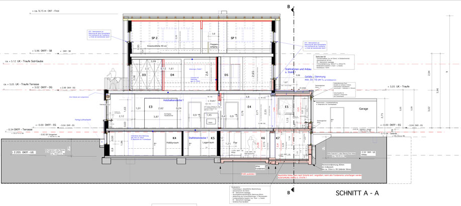
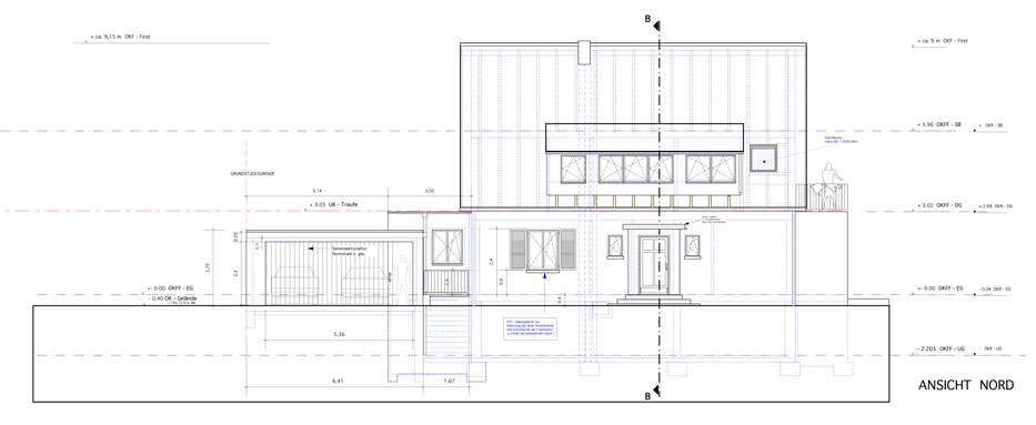
Ansicht Bestand + Neuplanung Giebel m. Anbau, Garage u. Gartenfassade
Ansicht Bestand + Neuplanung Giebel m. Anbau, Garage u. Gartenfassade
Terrasse Bestand
Grundriß DG
Dachaufsicht
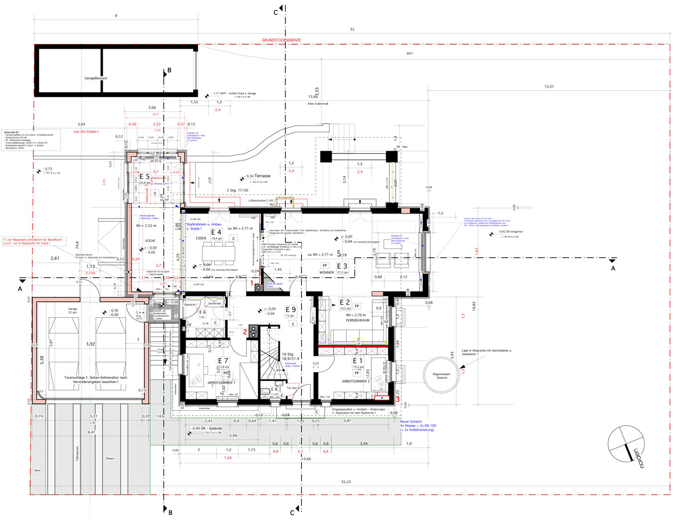
Grundriss EG