Entwurf / Bauantrag
Umbau u. Sanierung Wohnhaus
f. privaten Bauherren / NL - Kerkrade - 1994
Luftbild Ausführung
Gartenfassade / Bestand
Entwurfsplanung
Isometrie
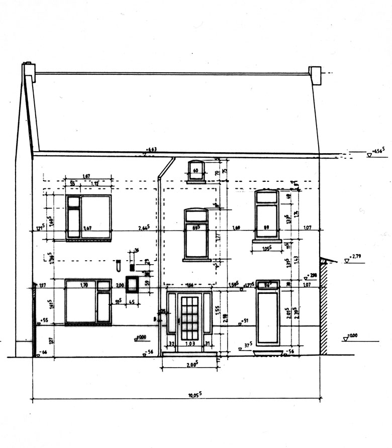
Gartenfassade
Giebelwand
Bestandsaufnahme / Aufmaß vor Ort