| Beratung, Plan. / Ausführung + Kostenschätzung | ||||||||||||||||||||||||||||||||
| energet. Sanierung - WDVS + Dachbodendämmung + Balkone | ||||||||||||||||||||||||||||||||
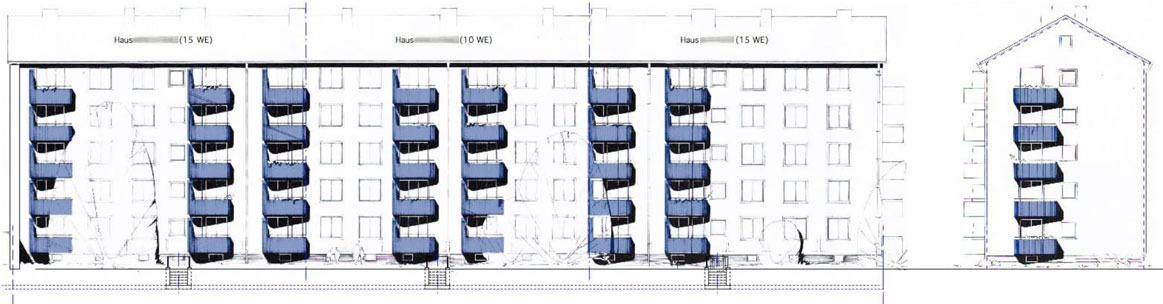
| großes MFH - 50er J. / 2009-10 + 2016 | ||||||||||||||||||||||||||||||||
| f. WEG / Hausverwaltung - München | ||||||||||||||||||||||||||||||||
![]() |
||||||||||||||||||||||||||||||||
|
Dachbodendämmung >>>>>
|
||||||||||||||||||||||||||||||||
![]() |
||||||||||||||||||||||||||||||||
|
Fassadendämmung >>>>>
|
||||||||||||||||||||||||||||||||
|
80 Balkone - Begehung mit Schadstellenanalyse
|
||||||||||||||||||||||||||||||||
![]() |
||||||||||||||||||||||||||||||||
![]() |
||||||||||||||||||||||||||||||||
|
||||||||||||||||||||||||||||||||
|
||||||||||||||||||||||||||||||||
|
||||||||||||||||||||||||||||||||